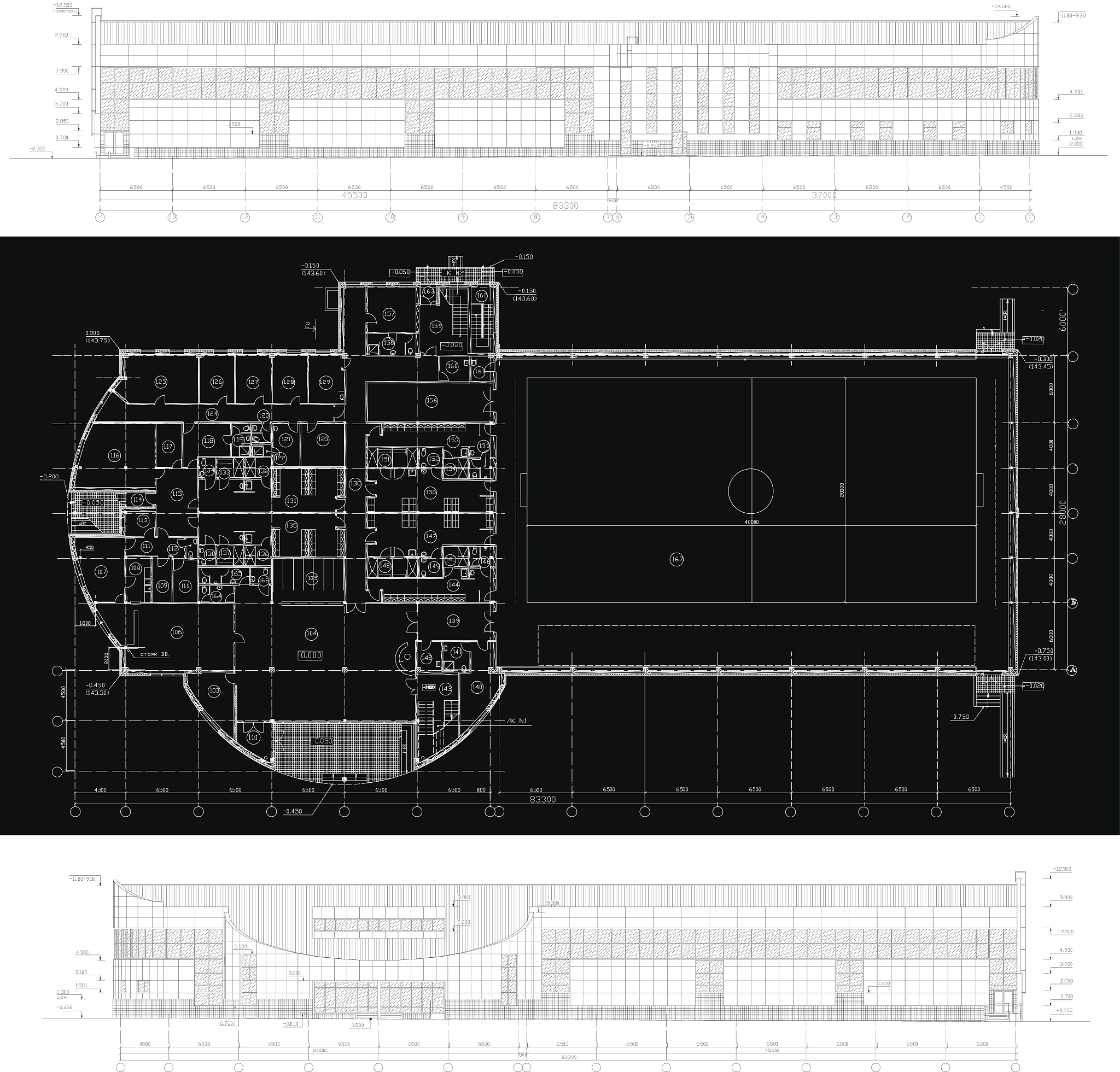
今天主要学习工地的图纸,这些图纸一般按专业类别可分为①建筑②结构③给排水④电气四个部分。每一部分的图纸又由目录,设计总说明,各种图纸和修改通知书组成。设计总说明是图纸设计进行必要的说明。如: 建筑设计总说明中有:设计依据,工程概况,各个分项工程的做法(墙体,楼地面,顶棚,屋面,室外工程,门窗,油漆等做法和一些必要的说明门窗表等)。 建筑部分图纸主要由平,立,剖面组成。 结构部分图纸主要由基础,柱网,各层结构以及屋面平面图,梁板配筋图,屋面层配筋图,楼梯等大样图组成,电气和给排水施工图由于学得较少,有很多地方不懂所以也比较少看。

工地图纸学习要点:建筑、结构、给排水、电气

原文地址: https://www.cveoy.top/t/topic/onFA 著作权归作者所有。请勿转载和采集!

免费AI点我,无需注册和登录