1. 了解图例:首先要了解图例,图例是建筑图纸中的关键信息,它说明了各种不同的线条和符号的含义,比如:墙壁、窗户、门、屋顶等。

  2. 了解比例尺:建筑图纸是按照比例绘制的,比例尺告诉您实际尺寸和图纸上的尺寸之间的关系。比如,1:100的比例尺表示1厘米的图纸长度等于实际长度100厘米。

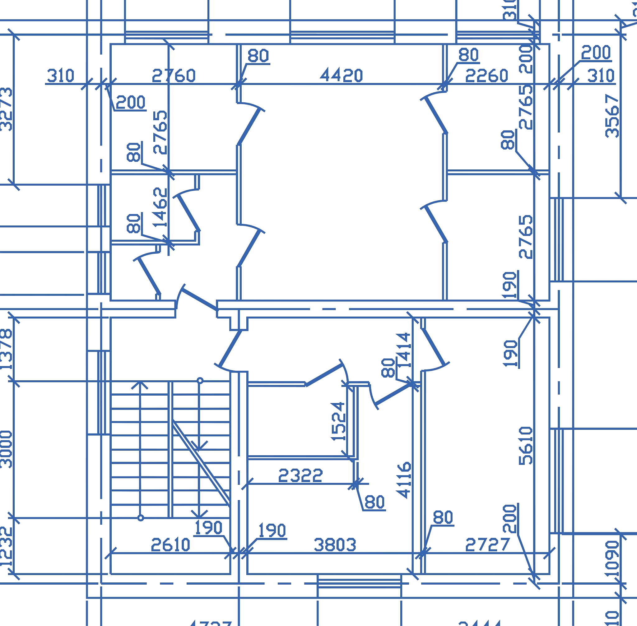
  3. 看平面图:平面图是建筑图纸中最基本的图形,它显示了建筑物的地面平面图。您可以在平面图中看到房间的布局、门、窗和墙壁的位置等。

  4. 看剖面图:剖面图显示了建筑物的剖面,您可以看到建筑物内部的结构和空间布局,包括楼层高度、墙壁厚度、楼梯、天花板和地板等。

  5. 看立面图:立面图显示了建筑物的立面,包括建筑物的外观、窗户和门的位置、屋顶的形状等。

  6. 看细节图:细节图显示了建筑物的细节,如窗户、门、梁、柱等部分的细节。这些细节图可以帮助您更好地了解建筑物的结构和设计。

  7. 注意标注:建筑图纸中的标注非常重要,它们提供了关于建筑物的尺寸、材料和其他关键信息。您应该仔细阅读和理解这些标注,以确保您正确地理解建筑物的细节和特点。

工业建筑图纸解读:从图例到细节,快速掌握建筑图纸阅读技巧

原文地址: https://www.cveoy.top/t/topic/ndIV 著作权归作者所有。请勿转载和采集!

免费AI点我,无需注册和登录